Aquesta setmana és la setmana de la ciència i els alumnes de l’ESO i Batxillerat hem realitzat una sèrie d’activitats relacionades per aprendre més sobre el nostre àmbit.
Business & Management:
Avui, dimecres 25 de novembre, els alumnes que cursem l’optativa d’economia a 1r de Batxillerat hem assistit a una conferència d’un taller formatiu de la Salle.
Aquest taller ajuda els estudiants a aplicar la metodologia de Design Thinking a les seves vides personals i professionals. És un moment per reflexionar sobre on són i on volen estar en un futur proper, com els agradaria desenvolupar-se com a persones i com la universitat podria ajudar-los.
El que hem après sobre el Design Thinking és un estudi de la neurociència que consisteix en utilitzar la part més irracional de les persones per connectar les seves necessitat amb la tecnologia i, així, transformar una estratègia de negoci en una oportunitat pel mercat. Aquest mètode utilitza el dibuix com a activitat principal i està compost per cinc elements: empatitzar, definir, idear, prototipar i provar.

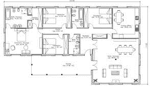
Arquitectura i edificació:
Al taller de arquitectura d’avui, el profesor ens ha explicat que es feia en arquitectura i quines sortides professionals té la carrera, després ha començat el taller i ens ha repartit 3 fulls, els plànols d’una casa i els mobles que hem d’utilitzar, després ens ha demanat que anem construint la casa, al nostre gust. Al acabar, ho hem posat tot en comú i ens ha donat recomanacions a cadascú de nosaltres. Per últim, ens ha ensenyat una animació 3D, com un simulador, que ell mateix va dissenyar.

Projecte Pensa:
L’Anna Bonorat, investigadora de l’IMIM (institut hospital del mar d’investigacions mèdiques), ens ha explicat als alumnes que fem l’optativa de biologia, què és el projecte pensa sobre l’Alzheimer. És un tipus de demència que causa problemes amb la memòria, el pensament i el comportament que es van desenvolupant lentament i empitjoren amb el temps.
Aquesta noia ens ha explicat en que consistia la malaltia i quin era el projecte que duia a terme. Aquest és recolectar diferents voluntaris per a trobar què pot fer que els símptomes es redueixi. Una manera per a que passi això és consumint una dieta mediterrània.
Ha estat molt interessant i ens ha permès conèixer més quines són les malalties que potser en futur ens afectaran i com podem fer per evitar-les.


